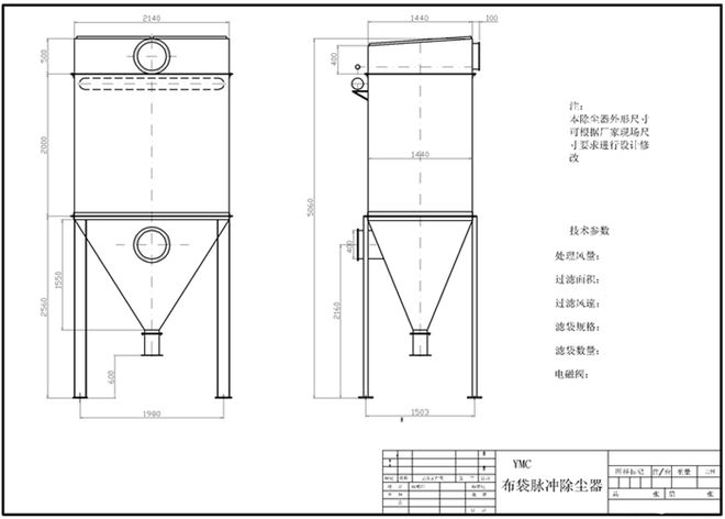
清灰过程:
由控制仪定期顺序触发各排气阀,使脉冲阀背压室与大气相通(泄气),脉冲阀开启则气包中的压缩空气通过脉冲阀经喷吹管上的小孔喷出(一次风),通过文氏管诱导倍数(约一次风的5~7倍)周围空气(二次风)吹进滤袋,造成滤袋急剧膨胀振动,加之气流反向吹扫作用,使积附在滤袋外表面上的粉尘层脱落。
这种清灰方式由脉冲的特征,因此叫做脉冲喷吹袋式除尘器。压缩空气的喷吹压力为500~700kPa,喷吹时间为0.1~0.2s,喷吹周期一般为60~180s。脉冲喷吹系统由脉冲控制仪、控制阀、脉冲阀、喷吹管及压缩空气包等组成。根据这一原理在传统的脉冲袋式除尘器的基础上发展成为了离线清灰型袋式脉冲除尘器。其特点为:
1.在停止过滤气流的状态下进行喷吹清灰,使滤袋清灰彻底;
2.喷吹气源压力可由在线型脉冲除尘器的0.5~0.7Mpa降低到0.2~0.3Mpa,从而节约了喷吹能源;
3.由于喷吹频度降低,可延长滤袋可脉冲阀膜片的寿命,增加设备的使用的可靠性,减少设备的维护时间和费用;
4.由于喷吹频度的降低,滤袋附灰层的过滤效果得以充分发挥,从而提高了总体的除尘效率,在使用500g/m2针刺毡滤袋时,排放浓度一般都在20mg/Nm3以下。
更多关于除尘器信息请访问:www.bthbgongsi.com
转载请注明来自盐城燕杰环保科技有限公司,本文标题:《脉冲喷吹袋式除尘器原理》

京公网安备11000000000001号
京ICP备11000001号
还没有评论,来说两句吧...